隋大兴宫-皇家园林

皇家园林文化

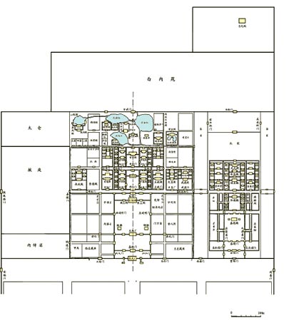
隋大兴宫即唐改称的太极宫,在长安中轴线北端。近年已经过勘探,其东西宽2820米,南北深1492米,分为中、东、西三部。中部为皇宫,即大内,东西宽1285米,面积1.92平方公里。东部为太子东宫,宽833米,西部为服务供应部分及作坊掖庭宫,宽703米。大内部分自南而北分朝区、寝区和苑囿三大部分。朝区为处理国政、举行大典的办公区,象征国家政权;寝区是皇帝的住宅,代表家族皇权。朝区正南为宫城正门承天门,是元旦、冬至举行大朝会等大典之处,比附周代宫殿之“大朝”或“外朝”,门外左右建高大的双阙,阙外为朝堂。门内正北为朝区主殿太极殿,是皇帝朔望(初一、十五两日)听政之处,比附周代宫殿之“中朝”或“日朝”。殿四周有廊庑围成巨大的宫院,四面开门,南门为太极门。太极殿一组宫院之东西侧建宫内官署,东侧为门下省、史馆、弘文馆等,西侧为中书省、舍人院等。太极殿后为宫内第一条东西横街,是朝区和寝区的分界线。横街北即寝区,正中为两仪门,门内即寝区正殿两仪殿,也由廊庑围成矩形宫院。此殿是皇帝隔日见群臣听政之处,比附周代宫殿的“内朝”或“常朝”。两仪殿东有万春殿,西有千秋殿,三殿都各有殿门,由廊庑围成宫院,与两仪殿并列。两仪等殿之北为宫中第二条东西横街,街东端有日华门,街西端有月华门,横街北即后妃居住的寝宫,大臣等不能进入。此部分正中为正殿甘露殿,殿东有神龙殿,殿西有安仁殿,三殿并列,以甘露殿为主,各有殿门廊庑形成独立宫院。前后两列,每列之殿是寝殿的核心,有围墙封闭,其中两仪殿和甘露殿性质上近于一般邸宅的前厅和后堂。甘露殿之北即苑囿,有亭台池沼,其北即宫城北墙,有玄武门通向宫外。在朝区门下省、中书省和寝区日华门、月华门之东西外侧,还各有若干宫院,是宫中次要建筑。朝寝两区各主要门殿承天门、太极门、太极殿、两仪门、两仪殿、甘露门、甘露殿等南北相重,共同形成全宫的中轴线。太极宫各殿宇压在今西安市下,无法做进一步勘探,目前只能据文献做出平面关系示意图以知概况。

1 11月

标签: 大兴 皇家 园林

评论留言

全部评论
木德育儿网-健康孕育知识分享_育儿百科知识大全观知健康-健康知识小常识_养生知识分享交流平台三省养生网-养生文化分享与交流_健康知识传播知识库乾藏国学网-国学文化传播_国学经典分享与传承易学新知网-风水知识分享平台好孕堂-助孕健康知识--查询、助孕小知识分享无双运势网 - 易学爱好者交流平台!一步达贷款社区--·中介办卡贷款技术·网贷口子·卡民论坛app好运来网-易学知识分享平台_易经入门零基础自学曲大夫助孕-助孕知识分享交流平台道情先生-风水交流平台_道可道非常道巧农网 - 农业技术知识_乡村创业致富好帮手天慧理财网 - 专注财富增长_最全面的综合理财知识分享网站亿福缘网 - 风水知识分享平台亿洋易学-专注于易学知识分享的平台健康助孕科普内容平台,分享专业助孕知识-孕知网孕好网_专注试管婴儿科普_助孕问答_助您有好孕!包天龙运势网 - 易学爱好者交流平台!九六易学网 - 为易学爱好者提供一个优秀的学习知识平台来好孕 - 愿好运伴您而行风水知识网算命久久网-今日运势分享_祝您好运常伴品千年雅韵,书一纸风华 - 诗词百科诗词名句网叮当历史 - 古文排行榜_历史人物文化经典故事大全来福网 - 传统国学典故_国学文化感悟人生斗转星移网富凯风水孕力加持网-好孕汇聚之地_孕力加持_好孕终至幸孕方舟网-专业试管助孕资讯解析速配精选网-专注于理财知识分享交流平台看测运势网-周易生辰八字测算_免费八字合婚_婚姻配对测试迪肯风水头条-风水知识交流分享平台易学迷-易学风水学入门知识分享与交流久道网 - 传统国学典故_国学文化感悟人生乐禧易学网 - 专注于易学高质量案例分享网站历史时间网 - 全球历史上的今天大事件风水388 - 风水学入门_居家风水小常识伍贰易学网-专注于易学知识分享平台星座爱-专注于星座运势知识分享巴巴百科 - 专业知识问答百科分享平台族女网-引领国学新时尚_让国学流行起来_传统易学风水文化学佛笔记句子汇-每日经典语录短句推荐叶翁网-风水易学知识分享_周易易学知识占卦塔尘网素食购--素味禅心、膳养菩提术灿网-风水国学起名十二生肖运势_易学阴阳风水秘术雀牛网-2026热门汽车品牌排行榜_新能源汽车推荐_床车房车选购攻略_您身边的汽车专家植物迷-探索植物属性_种植技术知识分享平台龙哥易学网古诗词名句_诗词名句大全_古籍文学资料库-好再来网番茄免费文学平台_免费网络小说_无弹窗广告小说阅读网_诗词古文文学知识分享-番茄文学网工作岗位职责网-本年度各行业部门工作职责大全_提供各行各业岗位职责范本久图网-唯美图片_卡通动漫图片_天堂图片_帅哥美女艺术图片_数以万计美图资料库醋椒影视网-2026年热门电影作品推荐_最火爆的电视剧导航网站常能网-带您了解那些经典的历史故事超追影视网-2026最新热门电影_热播电视剧在线追剧_高清免费短剧视频导航巴佩体育网-体育赛事新闻资讯_2026最新实时体育赛事比分捷报站星网 - 用心服务每一位站长,助力每一份梦想八万四千法门助好孕 - 助孕小贴士助你有好孕经书网 - 以音声作佛事,聆听与观想的修学园地 jingshu.net佛教音乐网 - 海量佛乐、梵呗、禅音在线试听与下载塔尊佛教网|借视频之舟,渡烦恼之海 Tazun.Cn聚合地图网好客运势网 - 经典典籍文化传承者听佛音 - 最好听的静心天籁之音老司机知识库--你的自学加速引擎,海量资源带你极速成长!唯美图片 - 高清唯美壁纸头像背景图库_PicURL图集素超人 - 国内领先的素食分享平台点优作文网 - 优秀作文大全_日记周记_读后感_历年中考高考范文顺发万年历-2026年日历,2026年老黄历查询,2026年黄道吉日素食学佛网佛教导航 - 开启智慧之旅,连接十方法缘 | fjdh.org.cn顺运堂 - 专业家居风水布局,八字命理分析,助您家宅兴旺,运势亨通地藏论坛-佛教网络净土_佛法综合社区生食主义哦嘿养殖网 - 热门乡村养殖发展项目_养殖技术知识分享大师看风水道秘相取名网-生辰八字五行取名_十二生肖取名品读名篇佳句,涵养诗意人生 - 古诗词网新华字典在线查字_在线汉语学习_汉字拼音_笔画顺序_组词造句_英语词典_诗词名句-诗文谜藏佛寺官网国学在线 - 国学网,国学学校,国学经典,国学地图弘善佛教网-传播正信正知佛法的佛教网站素食美-关爱健康_素食之美藏佛坑官网必过留学网_海外院校库_留学申请条件_留学费用_排名查询江湖以冷网 - 品读历史故事,感悟世间冷暖。生死书 - 佛教文化传承与生命智慧探索平台乐乐易学网-易学知识分享_生辰八字查询_五行八卦测算久食宿 - 旅游出行特色民宿推荐_全国名宿信息一览表趣知道 - 提问与分享,人人都是知识分享家 | Quzhidao.Com地藏孝亲网--南无大愿地藏王菩萨给农网吃好素-让生活因素而美情感语录网-婚姻情感语录_经典爱情语录_情感短信七七爱生活网十二星座_十二生肖运势_配对表_查询- 星座袋风水人家-国学文化风水知识交流平台道法网-风水运势解析_家居风水知识分享玖爱星座网-星座运势配对知识分享交流就识趣_专业中国传统文化网站_风水学藏经阁-最全的佛教经典典籍文库108工具网——您的全能在线工具箱中医文献网-中医古籍全文数据库推荐奇闻网-探索历史故事_带您了解历史上那些事儿八零生活网品酒啦-酒文化知识分享平台古籍文学网-最全的古文化知识分享平台公司起名-专注于弘扬传统文化的平台_宝藏典籍网非常易学网-生辰八字预测_生肖运势星座匹配居士之家-最全面的华人居士在线交流网站平台素超人-专注于善知识分享交流平台素超人 - 正能量善知识分享平台素超市 - 纯素生活购物平台VisaMastercardAmerican ExpressPayPalDiners ClubDiscover斗图趣 - 斗图表情包_有趣的斗图资源库富达裕-古文化经典藏品知识分享平台学佛网手机版笑一个吧 O(∩_∩)O 笑话大全_给生活加点笑料-XiaoYiGe.Cn班超文学网-优秀文学知识分享交流平台政卿事迹网-带您了解历史上的那些事儿素满香取名去 - 姓氏取名一览表_百家姓名字大全学佛网 - 佛弟子在线网络分享交流平台正能量网 - 传递正能量_真善美美文推荐搞笑gif动图网 - 内涵爆笑段子gif动态图_QQ表情包恶搞图片大全_97Gif.Com